Restaurant Primitivo Letten
Sommerdach für Aussenbereich von Restaurant
Entwurf: Metall Werk Zürich AG
Sommerdach als Regen- und Wetterschutz für Restaurant Primitivo im Oberer Letten Zürich.
 
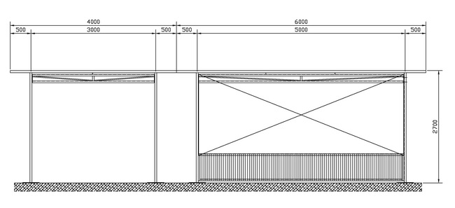
Stahlkonstruktion aus U-Profilen in einzelne Elemente zerlegbar, so dass im Winter alles abgebaut werden kann. Vorhänge aus glasklarem Kunststoff machen den Raum bedingt beheizbar. Dach aus glasfaserverstärkten Kunststoff-Wellplatten in spezieller Farbe hergestellt. Alles in feuerverzinkter Oberfläche.
 
Sicht vom Fussweg auf den Eingang. Als Windschutz für schlechteres Wetter sind hier auch die transparenten Planen gespannt.
 
Der Innenraum, Sonne und Regen geschützt. Die Lounge kann so auch bei schlechtem Wetter genutzt werden.

Ansichten der Konstruktionspläne. Das Dach muss über den Winter demontiert werden.

  
Die Bar und Lounge mit der Stützmauer im Hintergrund.