Parkhaus Urania
Neugestaltung des Haupteingangs Parkhaus Urania
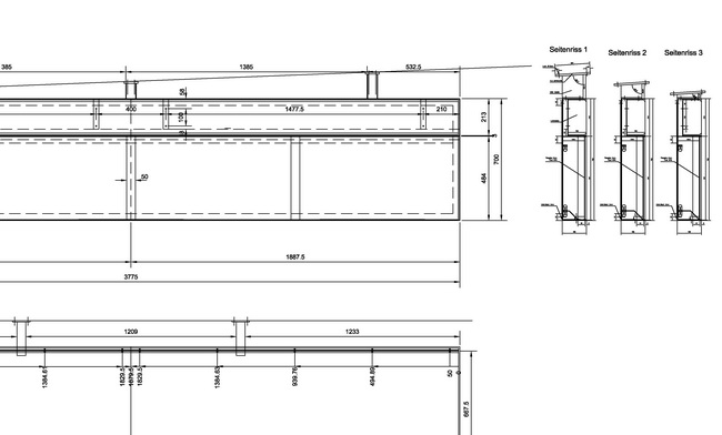
Liftfrontverkleidungen, Edelstahl- Riffelblechboden und Leuchtkasten
Architekt: Schäublin Architekten, Zürich
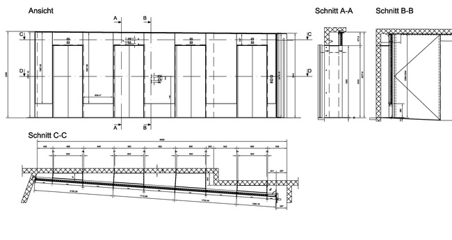
Umbau Eingang Parkhaus. Liftfrontverkleidungen aus Aluminiumblech, eloxiert. Bodenbelag im Eingangsbereich mit Edelstahl- Riffelblech.
 
Die neuen Liftronten mit dem Edelstahl Riffelblechboden nach dem Umbau. Die Vorbauten wurden aus 10mm dickem Stahlblech vor die bestehenden Lifttüren gestellt. Im Zwischenraum wurde Platz für Technik und Beleuchtung geschaffen.
An der rechten Seite wurde die Schiebetüre als Zugang zur Parkgarage platziert. Der Boden im gesamten Eingangsbereich wurde mit einem Edelstahl Riffelblech neu Belegt.
Vor den Aufzügen wurde auch eine automatische Schiebetüre montiert.
So sah die Situation vor der Saniereung aus. Auf Grund dieser Masse wurde die neue Front geplant.

Die Schalter für die Aufzüge wurden bündig mit der Verkleidung eingelassen. Die rot eloxierte Aluminiumverkleidung wurde ohne sichtbare Verbindungsmittel montiert.
Hier gut sichbar ist auch der Edelstahl- Riffeblechboden der im gesammten Eingangsbereich verlegt wurde. Die Blechplatten mussten vorab gena an der Kontur des Raums angepasst werden.

Im Aussenraum wurden die Geländer erneuert und ein neues Orientierungssystem installiert.

Beim Fussgänger Haupteingang wurde ein interaktiver Info-  Leuchtkasten über der Kasse installiert. Der Edelstahlkasten wurde mit LED Laufschrift und Leuchtstoffröhren bestückt.

eloxiert, Edelstahl, Riffelblech, Tiefgarage, Parkhaus, Aluminiumblech, Bodenbelag