Bronze Kubus als Gemeinschaftsgrab Friedhof Schwandenholz
Gemeinschaftsgrab im Friedhof Schwandenholz
Kunde: SKK Landschaftsarchitekten für Grün Stadt Zürich
Der Würfel am Standort im Friedhof Schwandenholz. Der Unterbau wurde aus rostfreiem Stahl auf ein Fundament gesetzt.
Im Vordergrund ist das Blumenband sichtbar. Die Oberfläche wurde ebenfalls aus Bronze gefertigt. Aufgelegt auf einer rostfreien Unterkonstruktion die mit Bolzen auf das Fundament montiert wurde.
Der Würfel bietet Platz für ca. 2000 Namen von Verstorbenen. Die Urnen werden in der dahinter liegenden Wiese bestattet.
Einen Millimeter Fugenbreite zwischen den Bronzeprofilen musste genau eingehalten werden. Die Ecken 45° Gerungen mit ebenfalls einem Millimeter Fuge.
Am Rand der Wiese wurde im gleichen Stil ein Blumenband installiert. Darauf können die Trauernden Blumen ablegen.
 Die obere Seite wurde ebenfalls mit den selben Bonze-Profilen belegt. Darunter ist eine verzinkte Stahlkonstruktion mit Bolzen auf das Fundament befestigt.
Die obere Seite wurde ebenfalls mit den selben Bonze-Profilen belegt. Darunter ist eine verzinkte Stahlkonstruktion mit Bolzen auf das Fundament befestigt.

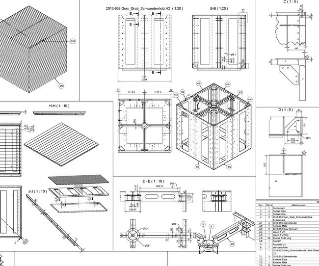
Ansichten vom Kubus aus den Plänen. Die Beschriftungsfelder können von Innen demontiert werden. Eine spezielle Leiter bietet Zugang zum Klappdeckel im Dach des Kubus.

Der Deckel lässt sich durch Unterstützung einer Gasfeder leicht öffnen. Hier ein Ausschnitt aus der Konstruktion des Deckels und der Leiter.

Die gesamte statische Unterkonstruktion wurde aus rostfreiem Stahl gemacht. Der kleine Toleranzbereich und die lange Garantiefrist für die Konstruktion liessen keine andere Materialisierung zu.

Die Unterkonstruktion beim ersten Zusammenbau in unserer Werkstatt.

Das Dach wurde in der Mitte entwässert. Unter den Profilen wurde eine Wanne zum Abführen des Regenwassers eingeplant.
Die Ansicht von Innen auf die Gedenktafeln. Diese können einfach von innen mit Flügelmuttern gelöst werden.
Für den Zugang haben wir eine bestehende Aluminiumleiter so umgebaut, dass Sie oben eingehängt werden kann.
So kann der Einstieg leicht geöffnet werden und der Einstieg auf die fix installierte Leiter im Innenraum ist problemlos.

Neben dem Gemeinschaftsgrab  wurde im gleichen Stiel eine Wassersäule realisiert.
Die Namen der Verstorbenen werden in die Bronze gefräst.
Bronze, Friedhof, Gasdruckfeder, Grabmal, Blumenablage, öffentlicher Raum, Buntmetall