Stehkubus aus Edelstahl
Stehkuben für Cafeteria in der ETH Zürich
Architekt: Itten und Brechbühl
Planung und Bau der Möbel aus Edelstahlblech.
Die Cafeteria mit den Stehkuben in der Eingangshalle. Die Quader wurden aus Chromstahlblech gebogen, in den restlichen Ecken sauber verschweisst und anschliessend verschliffen. Die Stehtische wurden passend zu den Sitzgelegenheiten von Dip & Double Dip von Chris Howker geplant. 
 Nach der Verarbeitung der Kanten war nicht mehr erkennbar, welche Kanten gebogen und welche verschweisst sind. Diese Ausbildung der Ecken führt zum Eindruck, dass das Möbel aus einem Stück gefertigt wurde. Die ganze Oberfläche wurde mit dem Schwingschleifer regelmässig verschliffen.  
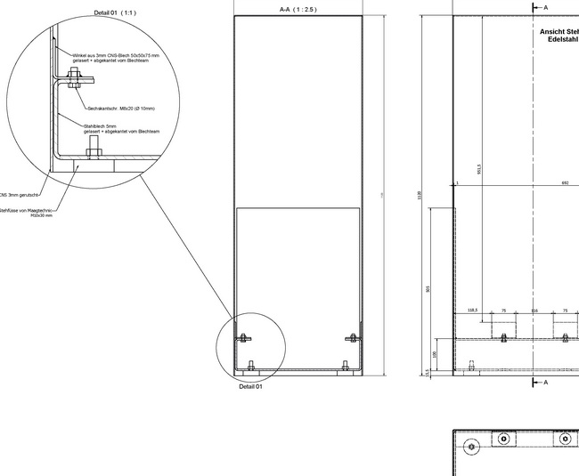
 Der Sockelbereich der Stehtische wurde mit zusätzlichem Gewicht gefüllt, um eine bessere Standfestigkeit zu erreichen. 

 Querschnitte der Stehtische aus der Planungsphase. An der Unterseite der Stehtische sind verstellbare Gleiter aus Kunststoff angebracht. So bleibt der Natursteinboden unbeschädigt, auch wenn die Kuben verschoben werden.
  Situation der Cafeteria vom Balkon in der Eingangshalle.