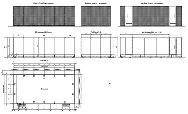
WC Container Restaurant Giesserei Oerlikon
Toiletteneinbau im Restaurant Giesserei in Oerlikon
Architekt: NOOA Zürich für Restaurant Giesserei Oerlikon, Zürich
Stahlbau verkleidet mit eloxiertem Aluminium-Streckmetall
 
Der Toiletteneinbau wurde als freistehender Körper in den Kellerraum gestellt. Durch die Erhöhung von 40cm konnte die Wasser-Zuleitung und Kanalisation gelegt werden. Ansicht von Aussen mit Verkleidung aus eloxiertem Aluminium-Streckmetall.
 
Die im Zwischenraum angebrachte Halogenbeleuchtung ergibt durch das Streckmetall ein faszinierendes Muster aus Licht und Schatten.
Das Muster ergibt sich im Zusammenhang von Streckmetall mit der Halogenbeleuchtung.
 
Der Innenraum wird durch die Beleuchtung und die farbigen Trennwände mit einem warmen und angenehmen Licht durchflutet. Hier die Waschtische mit Spiegel.


Tagsüber sollte Restlicht von den kleinen Kellerfenstern diffus in den Toiletteneinbau dringen.