Restaurant Markthalle im Viadukt
Innenausbau Restaurant Markthalle im Viadukt
Architekt: Andrea Rummel, Zürich
Freistehende Bar, Rauchschürzen zur Küche und mobile Gitter, um Nachts die Markthalle abzuschliessen.

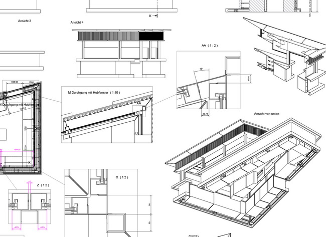
 Die Bar ist auf einer Stahlkonstruktion aufgebaut. Der untere Teil wurde mit Naturstein und Keramik, der obere Teil mit eloxiertem Aluminium verkleidet. Sie lässt sich nachts mit Hebefenstern abschliessen. Metall Werk Zürich AG realisierte die Metallbauarbeiten von der Planung bis zur Fabrikation und Montage der Bauteile.

Die Bar bildet zudem den Nachtabschluss der Markthalle. Deshalb kann diese mit Hubfenster verschlossen werden.

 Der umlaufende Rand mit eingebauter Beleuchtung und Stauraum ist ebenfalls aus eloxiertem Aluminiumblech gefertigt.

Hier die Ansicht der Bar von der Restaurantseite. Auf dieser Seite wurden 20 Barhocker am Boden verschraubt, sodass man auch an der Bar essen kann.


Jedes Teil wurde genau gezeichnet und vorfabriziert und um die vorfabrizierte Gastronomieküche gebaut.

Zuerst haben wir die statische Unterkonstruktion beigemessen und montiert. Die Stahlkonstruktion wurde grundiert geliefert. Ausser der Pfosten ist davon am Schluss kaum mehr etwas sichtbar.

Auch die "Krempe" oben baut auf einem kompliziert gebogenem Stahlblech auf.

Hier wird bereits die eloxierte Verkleidung montiert. Der Naturstein und die Keramik Fliesen wurden gleichzeitig verlegt. Auch die Hubfenster wurden hier bereits eingebaut. Die Hubfester lassen sich von Innen verriegeln und mit einem Gegengewicht leicht öffnen und schliessen.

Für die Bistrotische und Esstische haben wir einen speziellen Tischfuss entwickelt . Der zweiteilige Tischfuss lässt sich direkt an die Tischplatten Schrauben. Die Tischplatten wurden mit Kunstharz beschichtet und mit einer Messingkante ausgeführt.  Der Tisch und Tischfuss kann bei uns auch als Produkt bestellt werden.

 Im selben Stil sind auch die Bögen mit den Restaurantküchen durch Rauchschürzen abgetrennt. In die Schürzen wurden zusätzliche Verglasungen eingebaut.

Um den Durchgang in der Nacht zu verschliessen, wurden verschiebbare Gitterwände angebracht. Den Nachtabschluss haben wir mit einem speziellen Muster gefüllt.

Die Gitter in unserer Werkstatt in Produktion..

 Die Durchgänge können nachts durch verzierte Gitter verschlossen werden. Die Gittermuster wurden eigens für diesen Zweck angefertigt.