Café Bank - John Baker - Helvetiaplatz
Trennwände, Treppenverkleidung, Messingvitrinen, Hubfenster und einen Windfang
Kunde: Aromaproduktions AG für Café Bank und John Baker
Im Rahmen des Ausbaus der Bankfiliale in das Café und die Bäckerei haben wir verschiedene Arbeiten ausgeführt. Als Trennwand zwischen Backstube und Restaurant und Kundenbereich haben wir verglaste Trennwände mit Verkaufstheken gebaut.
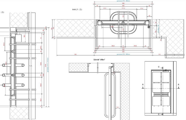
Die Durchreichen zum Kundenbereich können nachts mit Hubfenstern geschlosssen werden. Die Flügel werden mit einem Gegengewicht ausgewogen, so dass sie einfach bedient werden können.
Im Restaurant wurden Raumtrenner im Stil der alten Industrieverglasungen errichtet.
Der Zugang zu den Toiletten ist mit ebenfalls im gleichen Stil gefertigten Türen versehen. Die Waschtische aus Beton sind auf Eisengestelle montiert.
Für den Industriellen Look haben wir auch die Treppen mir rohem schwarzen Riffelblech verkleidet.

Wie gewohnt wurde vorab alles genau geplant.
Hier die Innenansicht der WC-Türen mit Strukturglas gefüllt.
Der Zugang zu den Toiletten von Aussen

Aus der Planung: Hier die Verglasungen mit Theke im geschlossenem Zustand.

Die Front mit den geöffneten Verglasungen.

Ein Gegengewicht, an den Säulen befestigt, ist über Umlenkrollen mit den Flügeln verbunden. Die Flügel sind mit einer Fallsicherung geführt.
Die Bäckerei in Betrieb.
Die Flügel lassen sich von innen mit einem Riegel verschliessen.
Die Bäckerei ist im Restaurant integriert. Daher muss nach Ladenschluss die Bäckerei geschlossen werden.
Auch die Verkleidungen unter der Theke zum Boden wurden im Stil der alten industriellen Verglasungen umgesetzt.

Beim Haupteingang wurde innenseitig ein Windfang angebracht. Zwei Pendeltüren halten die Luft zusammen.
Sicht aus dem Windfang in das Restaurant.

Im gleichen Stil des Windfangs wurde um die Kornmühle ein Häuschen zum Schallschutz aufgestellt. Der Zugang erfolgt über die Bäckerei.
Die Mühle erzeugt recht viel Lärm, der mit dem Glashäuschen zum Restaurant etwas gedämpft wird.

Auf der Theke der Showküche wurden einfache Vitrinen aus Messing als Spuckschutz gestellt.
Die Messingvitrinen wurden verglast und mit Gummiunterlagen direkt auf den Marmor gestellt.


Messing, Türe, Windfang, Drahtglas, Hubfenster, Pendeltüre, Toiletten, Industrial-Look, Buntmetall